Aufsatzrollo AK-Flex 2
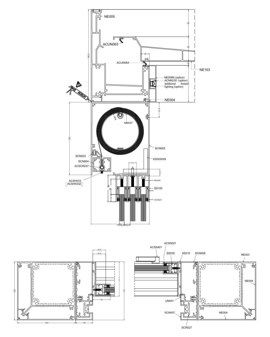
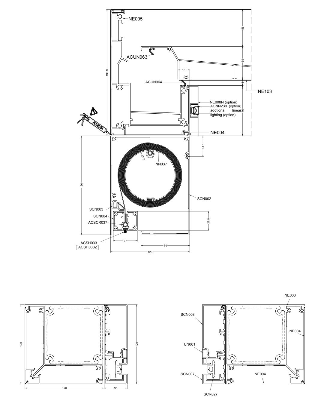
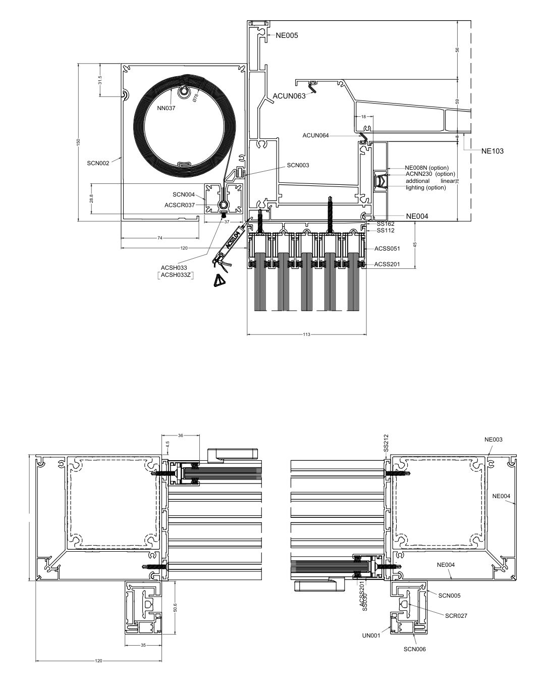
Moderne Beschattungslösung für großflächige Verglasungen und Outdoor-Bereiche. ZIP-Screen ECO ist ein fortschrittliches Sonnenschutzsystem, das speziell für große Abmessungen und moderne Architektur entwickelt wurde. Dank der Verwendung einer Kassette mit den Maßen 120 × 150 mm ermöglicht das System die Realisierung von Anlagen mit einer Breite von bis zu 6000 mm.
Wo eignet sich das System am besten? ZIP-Screen ECO ist die ideale Lösung für große Glasflächen in Einfamilienhäusern, Terrassen und Wintergärten, bioklimatische Pergolen, Restaurants und Horeca-Bereiche sowie Büros und gewerbliche Objekte.
Das System wurde speziell für großformatige Anwendungen entwickelt:
Das ermöglicht die Verschattung auch sehr breiter Glasflächen ohne Aufteilung in kleinere Module.
ZIP-Screen ECO kann auf verschiedene Weise gesteuert werden:
Somfy-Antriebe (IO, RTS). Die vollständige Automatisierung erhöht den Komfort und die Sicherheit in der Nutzung.
Gewebe – Funktionalität und Design. Das System bietet eine breite Auswahl an Screen-Geweben. Öffnungsfaktor: 0 %, 1 %, 4 %, 5 %. Die Gewebe ermöglichen die Kontrolle des Lichteinfalls, sorgen für Privatsphäre und schützen vor Überhitzung der Innenräume. Große Farbauswahl: Weißtöne, Grautöne, Anthrazit, Beige und Naturfarben sowie tiefes Schwarz.
ZIP-Screen ECO ist optimal kompatibel mit Aluminiumpergolen, Terrassenüberdachungen, Wintergärten sowie großen Schiebesystemen. Montagemöglichkeiten: zwischen den Konstruktionspfosten, außerhalb der Konstruktion, in Kombination mit Slide-Glass-Systemen.
Dank der ZIP-Technologie (Führung des Gewebes in seitlichen Reißverschlüssen) bleibt das Tuch über die gesamte Höhe gespannt. Das System ist windbeständig – kein Wellen- oder Flattereffekt des Materials. Zusätzlich verbessern Bürstendichtungen die Dichtigkeit sowie die Laufruhe des Systems.