Tür aus Stein Stone line
Eine von der Natur inspirierte Türenlinie aus Naturstein
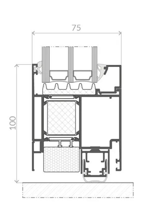
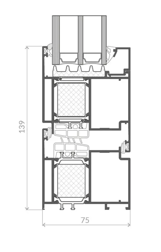
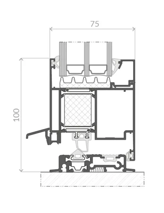
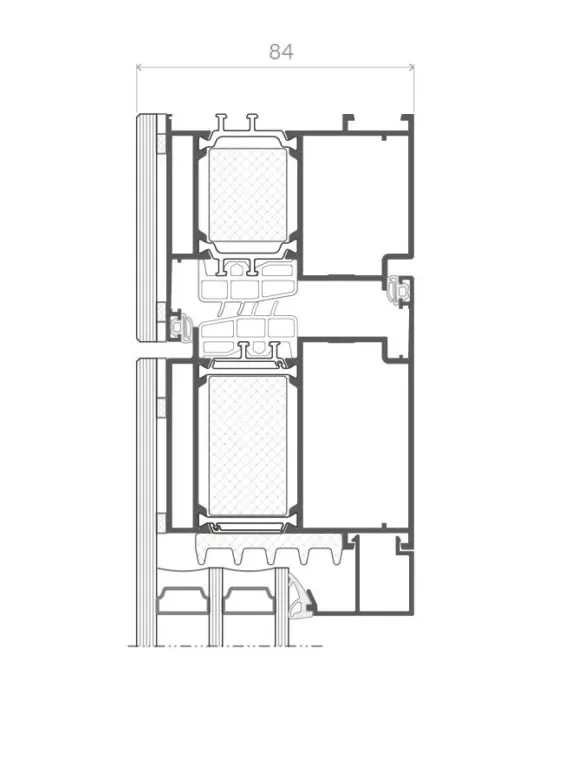
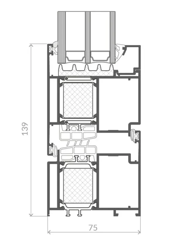
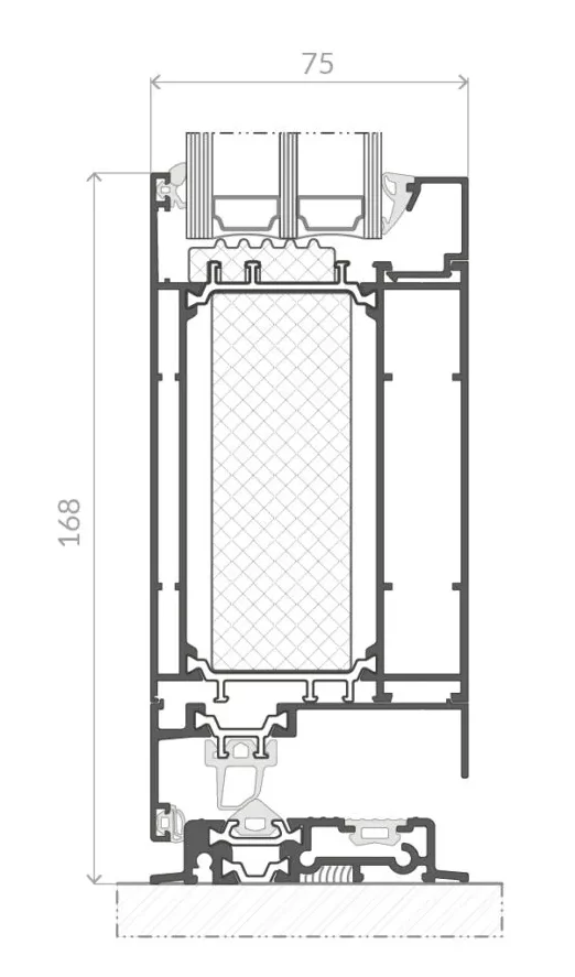
Das System AS 75P ist eine Aluminiumkonstruktion für Paneeltüren aus 3-Kammer-Profilen mit sehr guten Isolations- und technischen Eigenschaften. Das System ist für die Fertigung von wärmegedämmten Türen mit einem auf die gesamte Flügelfläche aufgeklebten Panel vorgesehen. Es passt ideal sowohl zu intelligenten, modernen als auch zu klassischen Gebäuden. Paneeltüren im System AS 75P sind für individuelle Einbauten sowie für Schaufensteranlagen vorgesehen. Die solide Verarbeitung, die Langlebigkeit von Aluminium und das breite Designangebot gewährleisten langjährige Haltbarkeit und Ästhetik.
Ein Drei-Kammer-System zur Herstellung wärmegedämmter Türen mit einem Panel, das über die gesamte Flügelfläche aufgeklebt wird. Es eignet sich sowohl für moderne als auch für klassische Gebäude. Paneeltüren im System AS 75P sind für individuelle Einbauten und Schaufensteranlagen vorgesehen. Die solide Verarbeitung, die Langlebigkeit des Aluminiums und die große Designvielfalt garantieren eine langjährige Beständigkeit, während die Möglichkeit, ein- oder beidseitig flächenbündige Paneele auszuführen, für eine außergewöhnliche Ästhetik sorgt.
Paneele erhältlich in folgenden Varianten: undurchsichtig, mit transparenten Elementen, vollverglast, mit Applikationen aus Edelstahl. Möglichkeit der Umsetzung individueller Projekte und Paneelmuster – Fräsen von Formen und Öffnungen. Verfügbare Scharnierarten: Aufsatzscharniere, Rollenscharniere, verdeckte Scharniere. Das System ist auch in der Version GLASS LINE mit vollverglastem Panel erhältlich.
Drei-Kammer-Aufbau der Aluminiumprofile. Mehrpunktverriegelungen serienmäßig, optional elektromotorische Schlösser. Vier thermische Varianten. Türen nach innen oder nach außen öffnend. Neue Lösungen: eingelassener Türgriff mit integrierter LED-Beleuchtung sowie dekorative Lamellen. Möglichkeit der Konstruktion von ein- und zweiflügeligen Türen mit Seitenteil oder Oberlicht.
|
Maximale Türabmessung |
1400 mm x 3000 mm |
|
Maximales Gewicht |
200 kg |
|
Profiltiefe der Türprofile |
75 mm |
|
Verglasungsbereich |
17-57 mm |
|
Wärmedämmung der Tür Uw (für 4 Varianten) |
od 0,93 W/m2K |
|
Min. sichtbare Rahmenbreite |
69 mm |
|
Min. sichtbare Flügelbreite |
65 mm |