Fragen Sie den Experten!

Genesis Steel

Fenstersystem mit industrieller Ästhetik und hoher Wärmedämmleistung

 
Genesis Steel

BESCHREIBUNG

Das Fenster Aliplast Genesis Steel ist eine Lösung, die eine industrielle Ästhetik mit sehr guten Wärmedämmwerten und umfangreichen Konstruktionsmöglichkeiten verbindet. Das System stellt eine echte Alternative zu anderen Max-Light-Lösungen dar – bei einem vergleichbaren visuellen Effekt (schmale Profile, „Steel-Look“-Design) bietet es gleichzeitig eine bessere Wärmedämmung, höhere Funktionalität und einen günstigeren Preis.

Diese Lösung wird besonders für den niederländischen Markt empfohlen – sie passt perfekt zur Architekturästhetik der Benelux-Region und erfüllt gleichzeitig die aktuellen technischen Anforderungen in Bezug auf Wärmedämmung und Funktionalität.

SYSTEMVORTEILE

Ausgezeichnetes Verhältnis von Wärmedämmung zu Preis
  • Sehr gute Wärmedämmwerte (das System erfüllt die aktuellen Anforderungen des niederländischen und Benelux-Marktes).
  • Möglichkeit zur Ausführung eines vollständigen Spektrums von Fensterkonstruktionen.
  • Flügel geeignet für Beschläge im PVC-Beschlagsnut.
  • Größere statische Möglichkeiten im Vergleich zu 70-mm-Systemen.
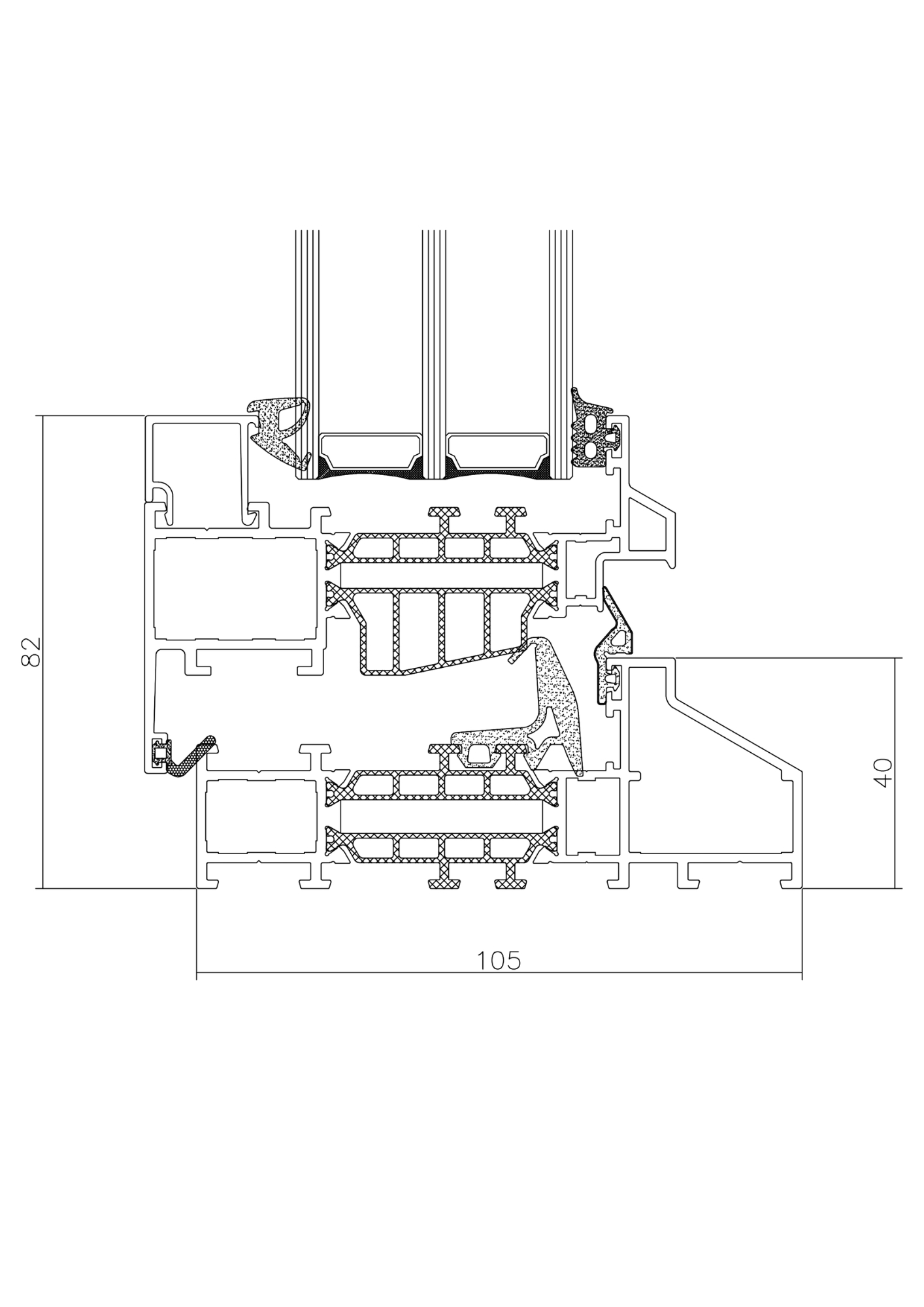
  • Rahmentiefe: 84 mm.
Doskonały stosunek termiki do ceny. Okna i drzwi Genesis 75. Profilnet Tarnowskie Góry Śląsk Silesia
KOMPATIBEL MIT PROTHERMO 75 UND RC3

Dank der Vielfalt der im System angebotenen Profile ist die Planung unterschiedlichster Fenster-, Tür- und Fassadenkonstruktionen möglich, die sowohl in öffentlichen Gebäuden als auch im Ein- und Mehrfamilienhausbau eingesetzt werden.

Die Genesis-Profile sind kompatibel mit den Türen ProThermo 75 sowie SafeThermo 75 – einer Marktneuheit: Sicherheitstüren der Klasse RC3 mit Zertifikat des IFT Rosenheim.

Współgra z Prothermo 75 i RC3. Okna i drzwi Genesis 75. Profilnet Tarnowskie Góry Śląsk Bytom Katowice
ENERGIESPARRENDE FENSTER

Der Einsatz einer zusätzlichen thermischen Dichtung neben der standardmäßigen Mitteldichtung ermöglicht eine sehr hohe Dichtheit der Fenster, ohne dabei das moderne Design zu beeinträchtigen. Diese Lösung verbindet höchste Benutzerergonomie mit einer modernen Profilästhetik, wodurch Fensterkonstruktionen mit individuellem Charakter und innovativem Erscheinungsbild realisiert werden können.

Die durchdachte Konstruktion des Systems Aliplast Genesis gewährleistet zudem konstanten thermischen und akustischen Komfort – unabhängig von der Jahreszeit.

QUERSCHNITTE

Bewertungen zum System Aliplast Genesis Steel

Benutzer des Systems Aliplast Genesis Steel heben am häufigsten die sehr gute Wärmedämmung sowie die hohe Verarbeitungsqualität hervor, die sich in realen Energieeinsparungen widerspiegelt. Die technischen Parameter dieses Systems bestätigen diese Einschätzungen vollständig.

In den Bewertungen wird außerdem regelmäßig die komfortable, intuitive Bedienung sowie der leise und leichtgängige Lauf der Beschläge erwähnt. Sowohl Eigentümer von Einfamilienhäusern als auch Investoren schätzen die Lösungen von Genesis Steel für ihre Langlebigkeit, Zuverlässigkeit und den hohen Nutzungskomfort, der über viele Jahre erhalten bleibt.

Farben

STANDARD FARBEN RAL
SONDERFARBEN RAL
Wood Colour Effect
Tiger - structurlack

Galerie