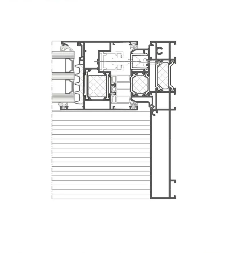
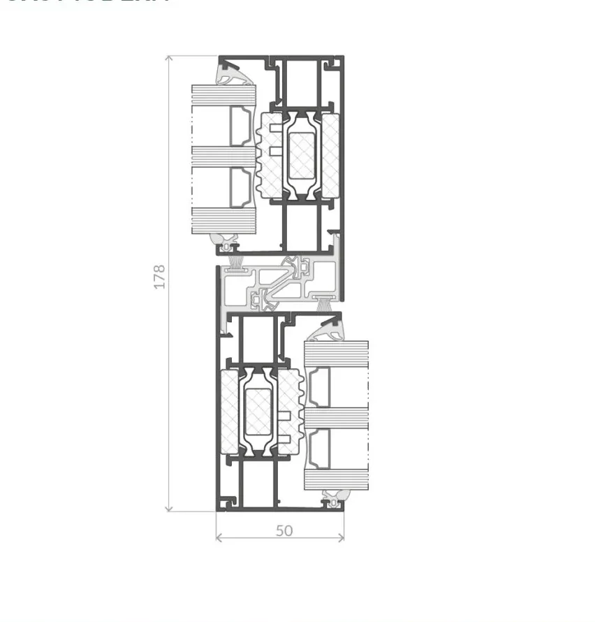
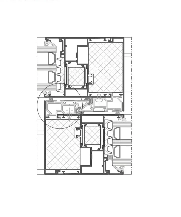
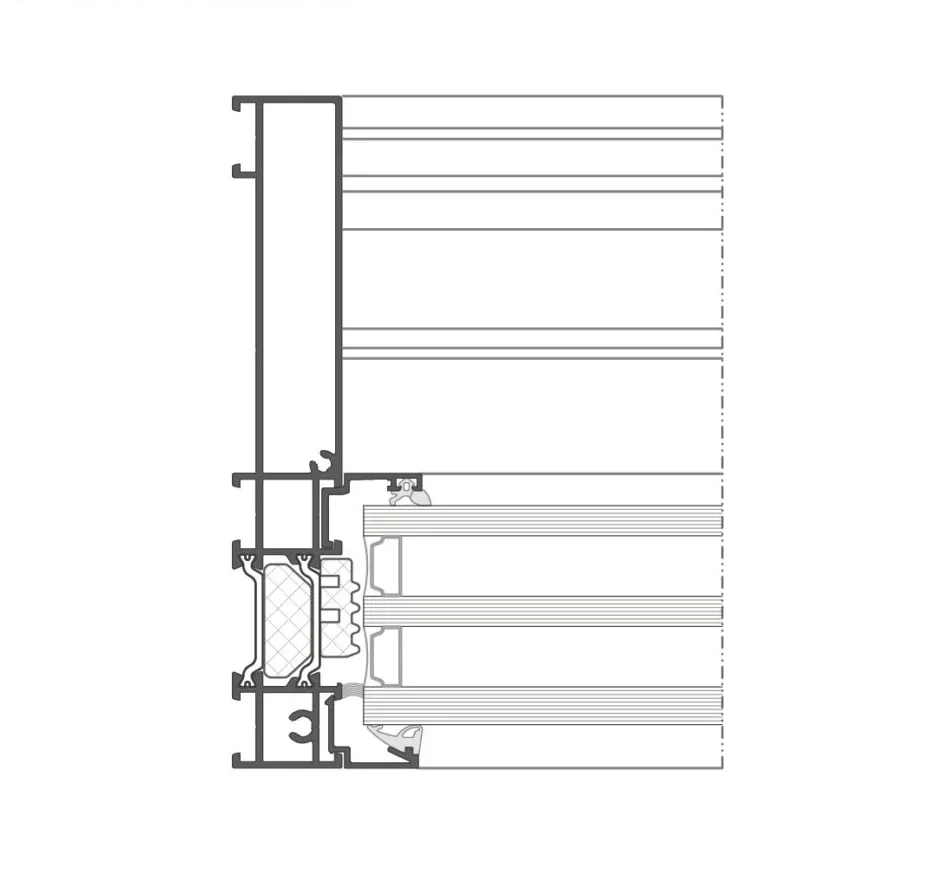
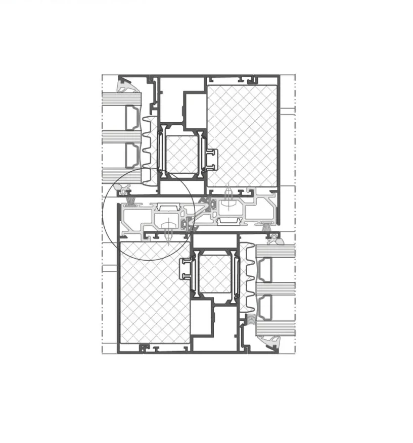
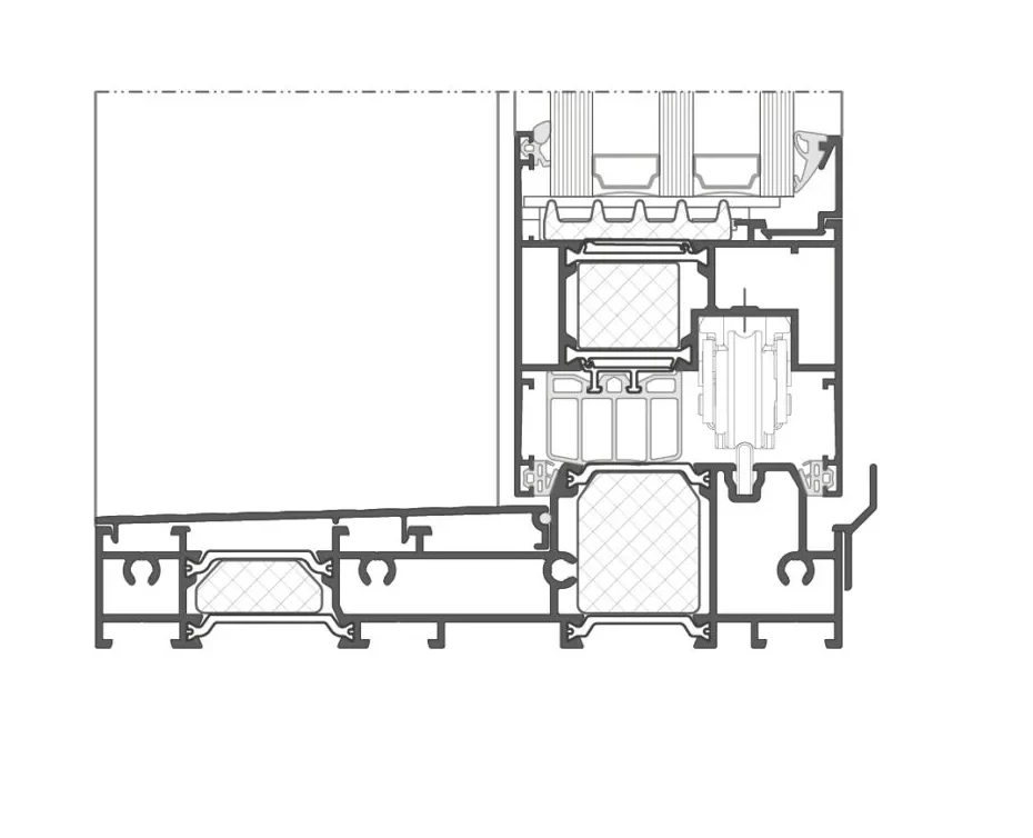
Das System ist in den Varianten A, C, G und K erhältlich. Es ermöglicht die Ausführung von Ganzglasecken – sowohl innen als auch außen – ohne zusätzliche Abdeckprofile, wodurch auf beiden Seiten des HS-Elements eine elegante, flache Oberfläche erzielt wird. Es wurde eine umlaufend am Flügel montierte akustische Dichtung sowie ein neuer Clip für die Festverglasung eingesetzt, wodurch die Notwendigkeit entfällt, das Profil an den Rahmen zu verschrauben. Standardmäßig ist außerdem eine verdeckte Zusatzabdichtung des Flügels ohne sichtbare Kunststoffabdeckung verfügbar. Das System ermöglicht die Automatisierung der Türflügelbewegung und ist kompatibel mit Linearentwässerung, systemischer Insektenschutzlösung, Ganzglasgeländer sowie einem Lüftungsflügel. Darüber hinaus ist der Einsatz von Beschlägen mit verdeckt im Getriebe integriertem Schließstück möglich, ohne dass eine zusätzliche Fräsung für eine Schließtasche erforderlich ist. Ebenso kann der Rahmen in der Dämmschicht verborgen montiert werden.
AS 178HS PRO SLIM
Das Innovative Ganzglas Hebe-Schiebe-System



