Genesis Steel
Höchste Wärmedämmeigenschaften
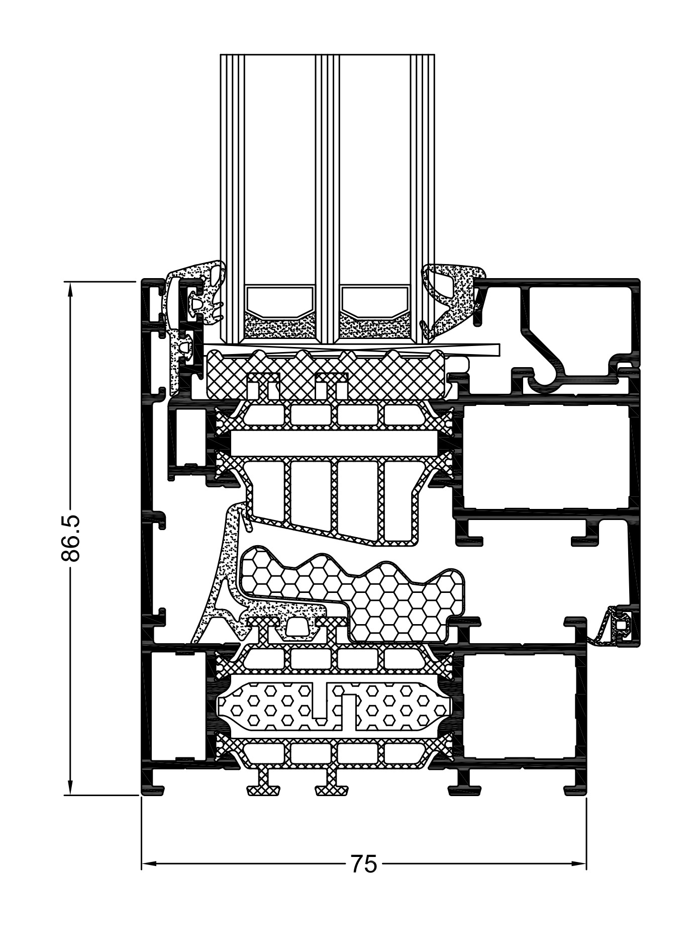
Ein Dreikammer-Fenstersystem für den Bau von Fenstern mit erhöhter Wärmedämmung. Die thermischen Parameter von Genesis 75 erfüllen die ab dem Jahr 2021 geltenden Anforderungen. Der Wärmedurchgangskoeffizient von Uf 0,84 W / m2Km wird dank dem Einsatz von Rahmenprofilen mit einer Breite von 75 mm und den modernsten Dämmstoffen erreicht. Das Fenstersystem Genesis 75 setzt einen neuen Standard der Fensterisolierung, bei gleichzeitiger Aufrechterhaltung höchster Gebrauchsergonomie und moderner Ästhetik des Profils.
Das moderne, Dreikammer- Fenster und Türsystem Genesis 75 mit den höchsten Wärmedämmeigenschaften erfüllt ohne Probleme die ab dem Kalenderjahr 2021 geltenden Anforderungen der europäischen Rechtlinie 2010/31/U. Laut der Vorschriften müssen alle Neubauten einen Mindestenergiebedarf ausweisen. Die Fenster im System Genesis 75 zeichnen sich durch einen sehr niedrigen Wärmedämmwert von Uf 0,84 W / m2K aus, der durch den Einsatz von 75 mm tiefen Rahmenprofilen und der modernsten Dämmstoffe erreicht wurde. Mit der Entscheidung für Fenster oder Türen im System Genesis 75 wählen Sie die besten thermischen Parameter zu erschwinglichen Preisen!
Die Vielfalt der im System angebotenen Profile ermöglicht alle Arten von Fenster-, Türen- oder Vitrinen-Konstruktionen herzustellen. Diese können sowohl in öffentlichen als auch in privaten Bereichen eingesetzt werden. Das System Genesis 75 ist kompatibel mit den Türen-System ProThermo 75. Außerdem kann das System mit unserer Neuheit, der von IFT Rosenheim in der Klasse RC 3 getesteten und zertifizierten Sicherheitstüren SafeThermo 75, verbunden werden.
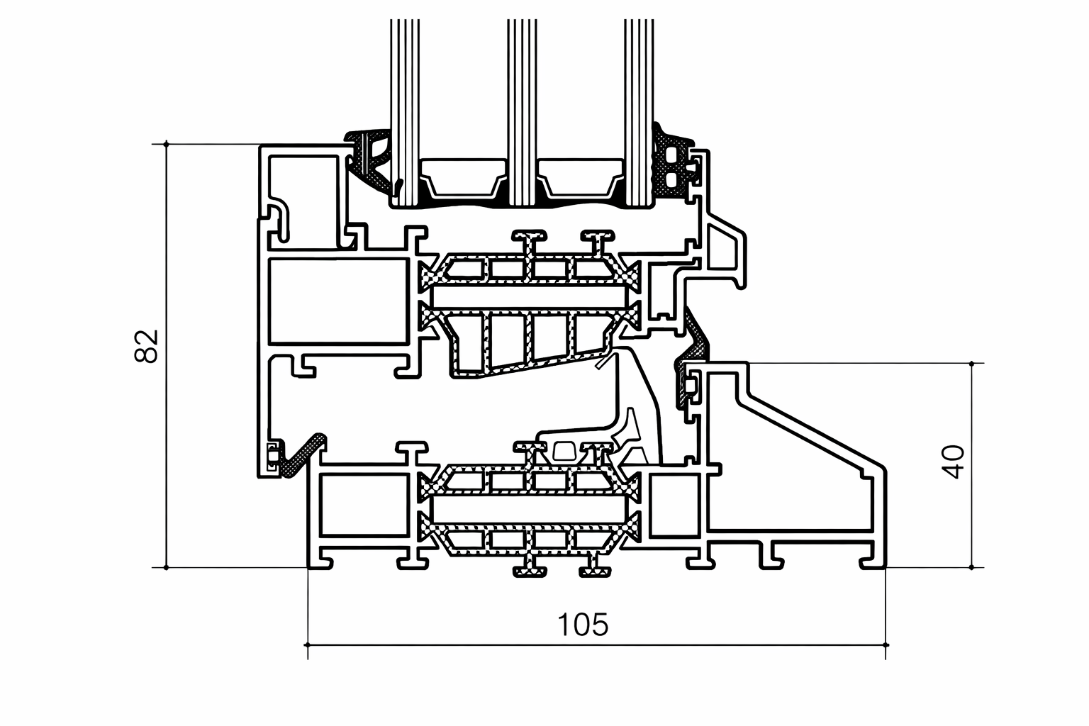
Minimalistisches Design, das Sie lieben werden: verdeckter Flügel und verdeckte Beschläge, verdeckte Entwässerung, Griff in der Farbe der Konstruktion, ohne Rosette, niedrige Schwelle bei Balkontüren.
Der verdeckte Flügel verleiht dem Fenster das Aussehen einer einheitlichen Glasfläche – wie bei modernen Aluminium-Glas-Fassaden. Die maximale Verglasungsfläche sorgt für hellere Innenräume und optisch mehr Raum. Ein voll funktionsfähiges Aluminiumfenster – komfortabel zu öffnen, mit der Optik einer festen Verglasung.
Der Einsatz einer zusätzlichen Dichtung neben der serienmäßigen Mitteldichtung ermöglichte eine erhöhte Dichtigkeit der Fenster bei gleichzeitiger Aufrechterhaltung der modernen Ästhetik. Dank dieser Kombination ist es möglich Fensterkonstruktionen mit individuellem Charakter und innovativem Erscheinungsbild herzustellen.

Die Variante Genesis SU (verdeckter Flügel) ist eine speziell entwickelte Rahmenform, die die gesamte Höhe des Flügelprofils verdeckt. Der breite Verglasungsbereich ermöglicht den Einsatz aller gängigen Verglasungsarten – Einfach-, Zweifachverglasung, Schallschutz- oder einbruchhemmendes Glas. Es sind zwei Varianten beweglicher Pfosten verfügbar:
Standardpfosten
schmaler Pfosten, der eine größere Durchgangsöffnung ermöglicht.
Die Entwässerung der Profile ist in zwei Varianten erhältlich: traditionell oder verdeckt. Das System mit verdecktem Flügel ist eine von Architekten bevorzugte Lösung, da es ermöglicht, Fenster in Aluminium-Glas-Fassadenkonstruktionen optisch zu integrieren. Dank dieser Lösung sehen von außen sowohl öffnende als auch feste Elemente identisch aus.
|
PROFIL |
Rahmentiefe: 75 mm | Flügeltiefe: 84 mm |
|
VERGLASUNG |
Standardmäßige Verglasung 4/18/18/4 Ug=0,5 W/m2K inklusive der wärmedämmenden Abstandhalter Swisspacer | Glasstärke von 14 bis zu 61 mm möglich. | Zur Auswahl stehen: Sicherheitsglas, Einbruchsicheres Glas, Sonnenschutzglas, Akustikglas und Ornamentglas. |
|
BESCHLAG |
GU | Zusätzlich werden alle Fenster mit Flügelheber, Mikrobelüftung und einer Blockade der Fehlstellung des Griffes ausgestattet. Bei den Türen kann dagegen zwischen der einfach- und der dreifach Verriegelung der Marke GU Secury gewählt werden. Es besteht die Möglichkeit sowohl Fenster als auch Türen in der Sicherheitsklasse RC 1 oder RC2 zu erwerben. |
|
GRIFFE |
Fenster – standardmäßig: Griffe aus Aluminium der Marke Hoppe Secustic: in der Farbe Silber, Weiß 9016, Braun 8019, Anthrazit 7016, Schwarz matt 9005, Gold oder Edelstahl. | Eingangstür – standardmäßig sowohl Griffe als auch Stangengriffe aus Edelstahl. |