Visoglide Plus
Ein warmes System für Veranden, Terrassen, Gärten und Innenhöfe
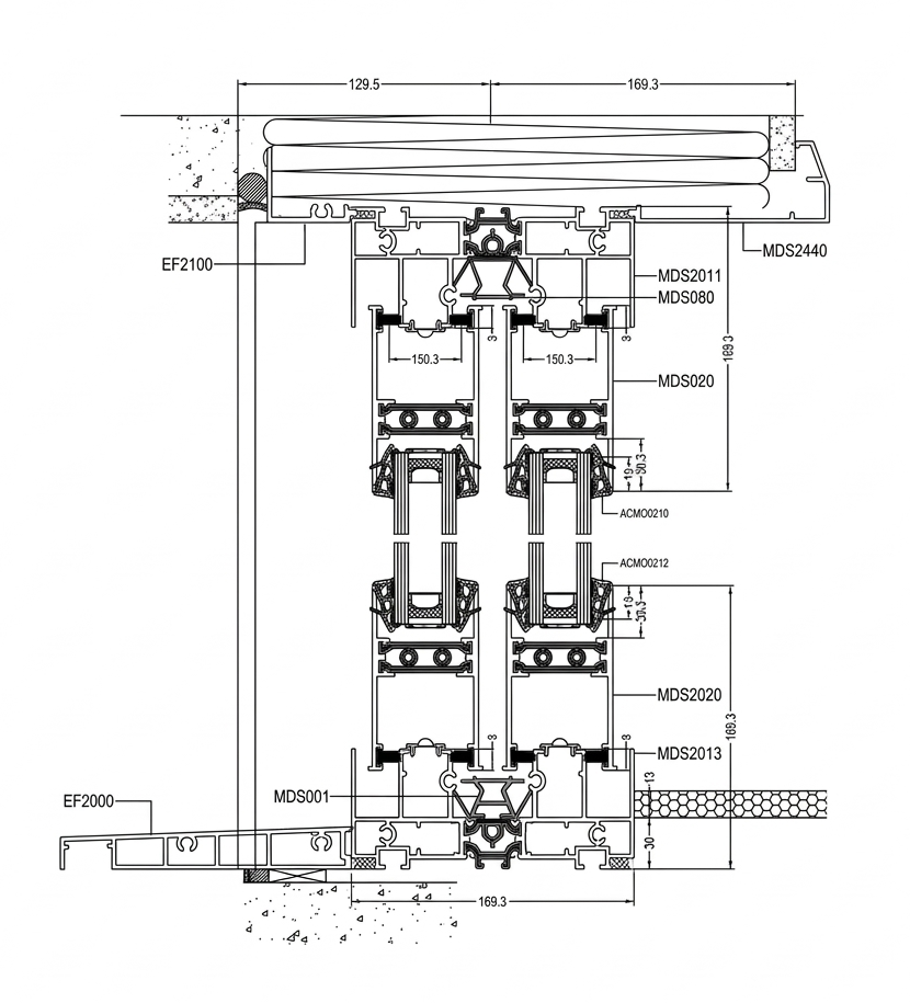
Modern Slide ist ein schlankes und modernes Schiebesystem mit erhöhter Wärmedämmung, mit dem Sie eine Schiebekonstruktion auf 2,3,4-Schienenrahmen entwerfen können. Das Modern Slide-System ist für den Einsatz in öffentlichen Versorgungseinrichtungen sowie in Wohn- und Individualgebäuden vorgesehen. Das System ist mit einer einzigartigen Galendage-Designlösung ausgestattet, dank der es möglich ist, die Tür zu öffnen, indem die Flügel fast vollständig in den Kammern der Gebäudewand versteckt werden. Dank der minimalen Breite der Verbindung von zwei Flügeln (35 mm) und Profilen, die in drei an unterschiedliche Festigkeitsanforderungen angepassten Ausführungen erhältlich sind, zeichnet sich das Modern Slide-System durch Leichtigkeit und Modernität aus.
Modern Slide ist ein warmes Schiebesystem, das sich durch eine breite Palette von Lösungen auszeichnet. Dank der technischen Lösung von Galandage ist es möglich, die Schiebeflügel fast vollständig in der Gebäudewand zu verbergen – wodurch das Licht des Durchgangs nach dem Öffnen der Flügel der Struktur maximiert wird. Die Monoblock-Lösung wiederum ermöglicht den Einbau in die Dämmschicht, die sich innerhalb der Räume befindet. Das System ermöglicht den Bau von Flügeln bis 250 kg und Verglasungen mit einem Paket bis 32 mm Dicke. Mit dem Modern Slide-System entscheiden Sie sich für eines der innovativsten und flexibelsten Schiebesysteme auf dem Markt!
Das Modern Slide-System erfüllt die Anforderungen des französischen Marktes in Bezug auf Ästhetik und höchste Verarbeitungsqualität. Dies ist eines der am häufigsten von Kunden aus Frankreich gewählten Schiebesysteme. Auf dem französischen Markt ist eine sehr interessante und beliebte Lösung die Möglichkeit, den gesamten Flügel in der Wand zu verstecken – das sogenannte Galandage. Modern Slide erfüllt die Erwartungen der Kunden aus Frankreich.
Modern Slide bietet 4 mögliche Öffnungsmuster. Wenn Sie sich für dieses System entscheiden, können Sie wählen: Schema D (zwei Gangblätter), Schema D + G (drei Gangblätter), Schema F (vier Gangblätter) und System mit 6 Gangblättern. Die maximale Verglasungsmöglichkeit beträgt: 4000×2500 mm für zweiflügelige Konstruktionen, 4000×2700 mm für dreiflügelige Konstruktionen und 4000×2400 mm für vierflügelige Konstruktionen.
|
PROFIL |
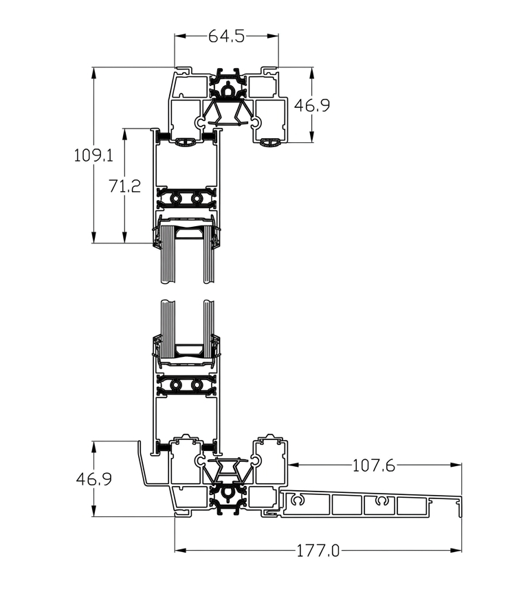
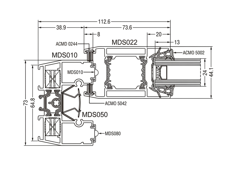
Rahmen: 73 mm | Flügel: 41 mm |
|
VERGLASUNG |
Standardverglasung 4/16/4 Ug = 1,0 Wm2K, Swissspacer Warme Kante. Möglichkeit der Verwendung einer Anastomose von 24 bis 32 mm | Zur Auswahl stehen: sicheres, gehärtetes, einbruchhemmendes, sonnengeschütztes, akustisches, dekoratives Glas |
|
BESCHLAG |
Aliplast-Beschlag, 1-, 2- oder 3-Punkt-Verriegelung. |
|
GRIFFE |
Der Griff ist in weiß, schwarz oder silber in das Profil eingelassen. |
|
Wärmedurchgangskoeffizient Uf |
Uf ab 1,50 W/m²K |
|
Luftdurchlässigkeit |
Klasse 3; PN-EN 12207 |
|
Windlast |
Klasse C1 (400 Pa); PN-EN 12210 |
|
Wasserdichtheit |
Klasse 6A (250 Pa); PN-EN 12208 |
|
Flügelgewicht |
bis 250 kg |
Die Profilkonstruktion ermöglicht den Austausch der Fenster und Türen ohne Demontage der bestehenden Zargen. Spezielle Ergänzungsprofile und Außenblenden machen Putzarbeiten überflüssig.

Modern Slide bietet eine spezielle Variante, bei der die Flügel vollständig in der Wand verschwinden und eine maximale Durchgangsbreite ermöglichen.


Das System Modern Slide Monoblock bietet Rahmen mit unterschiedlichen Bautiefen, die an die Standardmaße der Wärmedämmung in Frankreich angepasst sind.
