Fragen Sie den Experten!

Steel Look ST1000

Wärmegedämmtes Fenster- und Türsystem mit an Stahl ähnelten Profilen

 
Steel Look ST1000

BESCHREIBUNG

Bei dem Steel Look ST1000 handelt es sich um ein Fenster- und Türsystem mit Wärmedämmung, welches sich mit glatten und schlanken Profilen auszeichnet. Die speziell entwickelte Form des Profils bewirkt, dass die auf Basis dieses Systems erstellten Fenster und Türen an Stahlkonstruktionen erinnern. Die Form des Profils (dank dem die Konstruktionen der Stahlstruktur ähnelt) macht Aliplast Steel Look ST1000 zu einem einzigartigen Produkt auf dem Markt. Neben modernen Design zeichnet sich dieses System durch gute thermische Eigenschaften auf dem Niveau von 2,56 W/m2K aus. Dank der breiten Farbpalette RAL , Strukturlacken sowie holzähnlichen Farben (Aliplast Wood Color Effect) ermöglicht das System jede Menge Personalisierungsmöglichkeiten. Aliplast Steel Look ST1000 eignet sich perfekt für die modernen Bauten.

SYSTEM VORTEILE

Einzigartiges Design

Die Verwendung von Aluminiumprofilen mit einer bestimmten Form (ähnlich wie Stahlprofile) macht Aliplast Steel Look ST1000 zu einem Produkt mit einzigartigem Design. Die verwendeten Profile zeichnen sich durch eine glatte und schlanke Linie aus, wodurch sie der gesamten Konstruktion einen industriellen, modernen Charakter verleihen. Dank der breiten Farbpalette ermöglicht das System Aliplast Steel Look ST1000 eine perfekte Anpassung von Fenstern und Türen an die Fassade und den Innenraum. Das System Aliplast Steel Look AT1000 eignet sich perfekt für den Bau von nach innen öffnenden einflügeligen und doppelflügeligen Fenstern. Sein außergewöhnliches, charakteristisches Design macht es zu einem idealen Vorschlag für den Einsatz in außergewöhnlichen Projekten. Das System eignet sich auch perfekt für feststehende Vitrinen, für Konstruktionen mit Einfachscheibe sowie Isolierverglasung.

Aliplast Steel Look Okna i Drzwi Tarnowskie Góry
Noch mehr Licht

Die einzigartige, speziell entwickelte Struktur von Fenstern und Türen aus schmalen und glatten Aluminiumprofilen lässt noch mehr Sonnenlicht in Ihre Räume. Das System Aliplast Stel Look ST1000 zeichnet sich außerdem durch eine solide und langlebige Konstruktion aus, die sich perfekt für den täglichen Gebrauch eignet.

Aliplast Steel Look ST1000 Okna i Drzwi Tarnowskie Góry
Vielzahl an Möglichkeiten

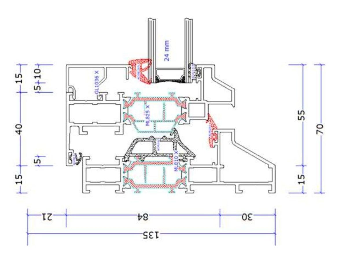
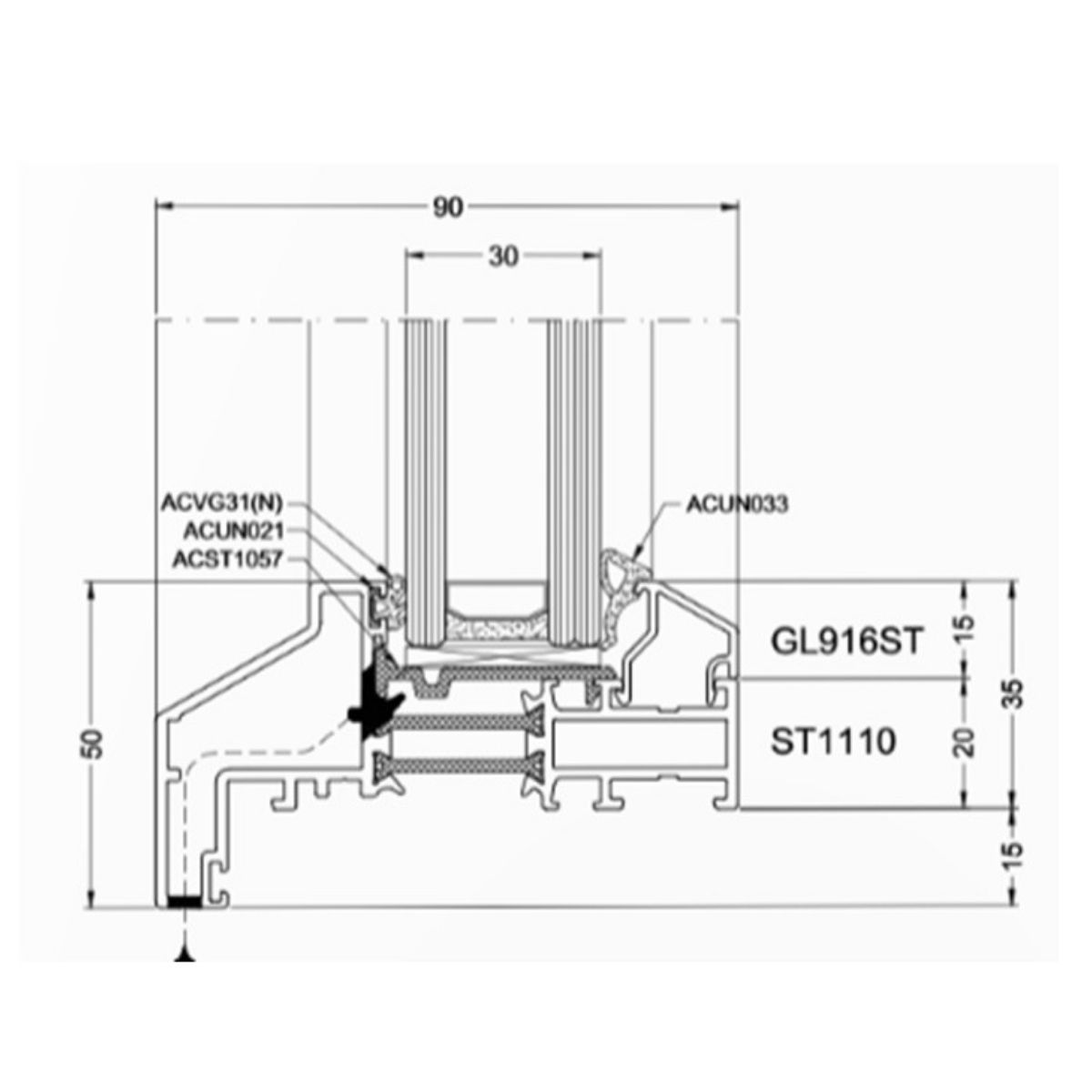
Aliplast Steel Look bietet eine Vielzahl von Möglichkeiten. Die Variante ST1110 ermöglicht, dank des vertieften Rahmens mit Anschlag,  die Montage von der außen Seite. Die Version ST1010 ermöglicht dagegen dank des vertieften Rahmens eine Montage im der Lichtöffnung. Wiederrum die Variante ST1210 ermöglicht die Verwendung eines niedrigen und die Variante ST1012 einen hohen Rahmens, wodurch innen viel Platz für die Scharniere vorhanden ist.

Abschnitte

Profilvarianten

Systemparameter

Rahmentiefe

90 mm

Flügeltiefe

74,4 mm

Verglasungsstärke

5–43 mm

Wärmedurchgangskoeffizient Uf*

Uf ab 1,85 W/m²K

Luftdurchlässigkeit

Klasse 4; PN-EN 12207

Windlast

Klasse 7A (300 Pa); PN-EN 12210

Schlagregendichtheit

Klasse C4 (1600 Pa); PN-EN 12208

VERGLASUNG

Standardpaket 4/18/4/18/4 Ug = 0,5 W/m2K, warmen Swisspacer Abstandhalter| Möglichkeit Glasstärke zischen 14-68mm zu verwenden | Zur Auswahl: Sicherheitsglas, Sonnenschutzglas, Akustik- und Ornamentsglas.

BESCHLAG

GU | Zusätzlich wird jedes Fenster ausgestattet mit: Diebstahlsicherungen, Flügelheber, Mikrobelüftung und Blockade der falschen Position des Griffs.

GRIFFE

Fenster – standardmäßig: Aluminiumgirffe Hoppe Secustic in der Farbe Silber, Weiß 9016, Baun 8019, Anthrazit 7016, Schwarz Matt 9005, Gold, Inox.

Farben

STANDARD FARBEN RAL
SONDERFARBEN RAL
Wood Colour Effect
Tiger - structurlack

Galerie