ACS 50
Innovatives Ganzglas-Hebe-Schiebesystem
Das System Aluron ACS 38 Office ist eine Lösung zur Erstellung moderner, akustischer, thermisch nicht isolierter Wände, Boxen und Verglasungen. Mit diesem System können schlanke Aluminiumkonstruktionen für Innenwände und Trennwände mit hohen funktionalen und ästhetischen Eigenschaften realisiert werden. Das System ermöglicht den Einsatz verschiedener Türkonstruktionen mit den schmalsten Zargen des Typs SLIM. Ein weiterer Vorteil ist die Möglichkeit der Integration von zwischen den Scheiben montierten Jalousien, die manuell oder automatisch gesteuert werden können. Das System eignet sich für den Einsatz in Bürogebäuden der Klasse A. Zudem verfügt das System über eine nationale technische Bewertung (Krajowa Ocena Techniczna).
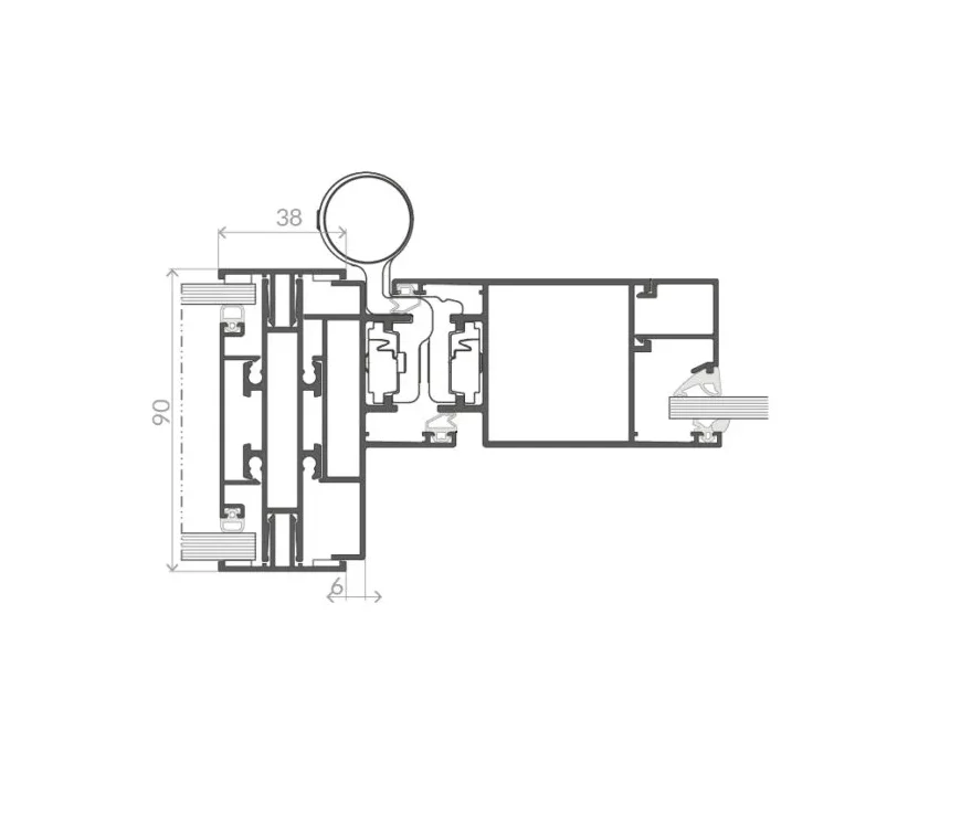
Aluron ACS 38 ist ein System, das dank seiner Struktur den höchsten Zugang zu Tageslicht gewährleistet. Die schlanke Bauweise (Pfosten nur 38 mm breit) sorgt in Kombination mit dem Türrahmen (6 mm im sichtbaren Rahmen) für maximales Licht in der Glastür. Das System eignet sich überall dort, wo hohe ästhetische Werte und der Zugang zu natürlichem Licht wichtig sind.
Das System Aluron ACS 38 zeichnet sich durch eine Reihe moderner technischer Lösungen aus. Das Produkt ermöglicht die Integration mit manuell oder automatisch gesteuerten Zwischenscheibenjalousien. Ein Höchstmaß an Funktionalität und Sicherheit wird durch die Festigkeitsklasse III und die Betriebsklasse IV gewährleistet. Das System ist mit Aluminiumtüren des Systems ACS 50 kompatibel.
Wände, Kästen und Vitrinen aus dem System Aluron ACS 50 sind in allen Farben der RAL-Palette erhältlich. Darüber hinaus können sie mit holzähnlichem Lack sowie im Decoral-System hergestellt werden, das farbige Imitationen von Marmor, Granit und anderen Mustern umfasst.
|
Einbaubreite des Rahmens |
90 mm |
|
Pfostenbreite |
38 mm |
|
Bereich der Füllungsstärken (undurchsichtig) |
5–84 mm |
|
Maximale Wandhöhe |
5300 mm |
|
Verglasungsbereich |
5–13 mm |
|
Maximale Wandhöhe |
5300 mm |
|
Minimale sichtbare Rahmenbreite |
38 mm |
|
Maximale Fläche eines Verglasungsmoduls |
bis 6,0 m² |
|
Abstand der vertikalen Pfosten |
bis 2500 mm |
|
Schalldämmung für die undurchsichtige Version |
bis 52 dB |
|
Schalldämmung für die transparente Version |
bis 46 dB |
|
Luftdurchlässigkeit |
0,01 m³ (m·h·daPa²/³) |